Casas modulares

Casas prefabricadas de alta calidad

‘‘Diseñamos los componentes arquitectónicos del futuro para transformar los espacios de hoy’’

Casas modulares de alta gama

En Sistemarq nos comprometemos con la creación de espacios arquitectónicos innovadores y sostenibles.
Nuestro equipo desarrolla soluciones constructivas de vanguardia y eficientes, permitiendo una construcción más rápida, competitiva y sostenible.
En Sistemarq, el diseño es fundamental, garantizando espacios estéticamente atractivos, funcionales, seguros y de alta calidad.

S30

La vivienda modular S30 es una propuesta contemporánea de 30 metros cuadrados en una sola planta, diseñada para ofrecer confort y funcionalidad en un formato compacto.

· 30 m2
· 2 Hab/ 1 Baños

plano S30

S60

La vivienda modular S60 es una propuesta contemporánea de 60 metros cuadrados en una sola planta, diseñada para ofrecer confort y funcionalidad en un formato compacto.

· 60 m2
· 2 Hab/ 2 Baños

plano S60

S90

La vivienda modular S90 es una propuesta contemporánea de 90 metros cuadrados en una sola planta, diseñada para ofrecer confort y funcionalidad en un formato compacto.

· 90 m2
· 3 Hab/ 2 Baños

plano S90

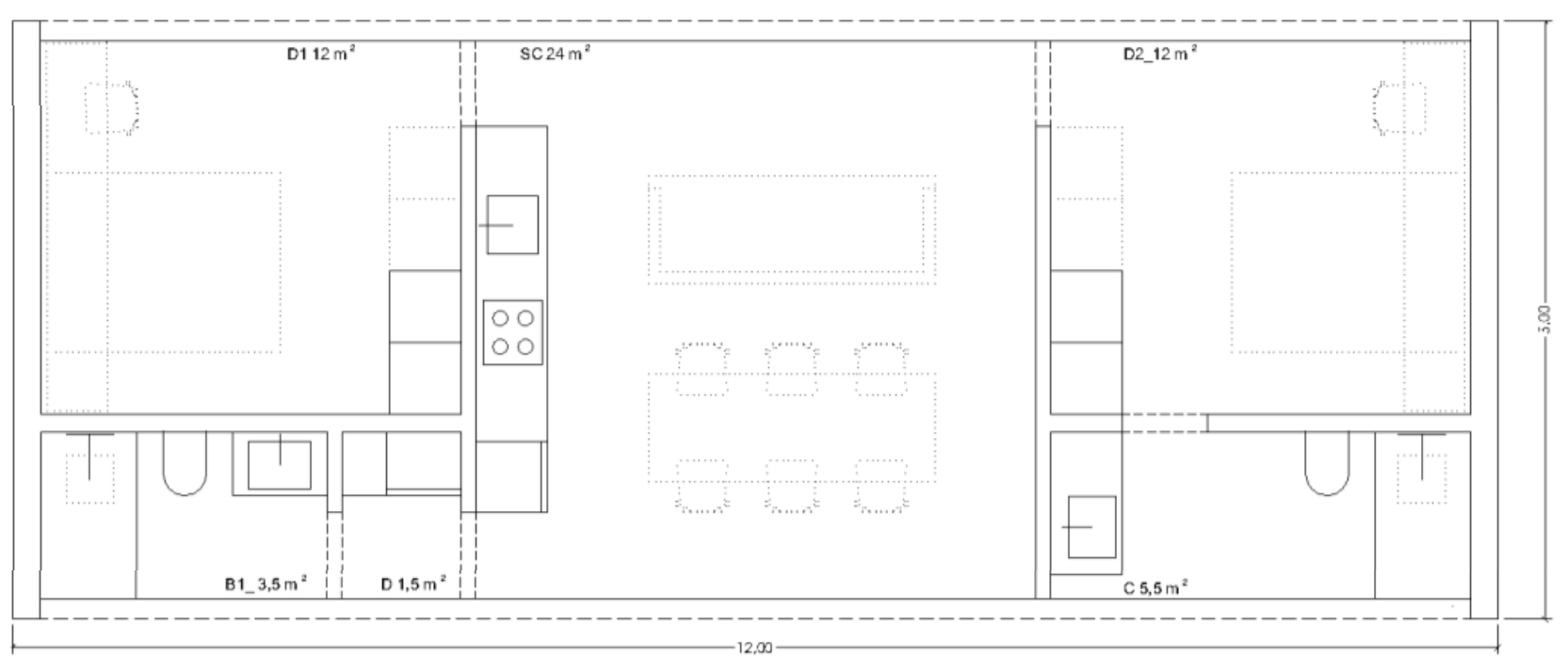
S120

La vivienda modular S120 es una propuesta contemporánea de 120 metros cuadrados en una sola planta, diseñada para ofrecer confort y funcionalidad en un formato compacto.

· 120 m2
· 3 Hab/ 3 Baños

plano S120

¿Cómo procedemos a la cimentación y adecuación del terreno?

Desde Sistemarq, nos podemos encargar del diseño y ejecución de los trabajos de adecuación de la parcela para la instalación de tu nueva cada modular.Además, podemos personalizar tu parcela con la construcción de terrazas o la instalación de una piscina, adaptándonos para cumplir todos tus deseos.

Cimentación y adecuación del terreno

Memoria de calidades de casas modulares Sistemarq

En Sistemarq te acompañamos en cada paso para hacer realidad tu próximo hogar.Desde el primer momento, queremos que tu experiencia sea perfecta. Por eso, compartimos contigo nuestra memoria de calidades.Descubre al detalle nuestras casas modulares.

Memoria de calidades de casas modulares Sistemarq

Estructura de casas modulares

Nuestras unidades modulares se erigen sobre una estructura metálica, asegurando una larga vida útil para tu nuevo hogar.Cada estructura se diseño y calcula meticulosamente, optimizando su diseño según la tipología específica.En Sistemarq, priorizamos tu seguridad y confort, por lo que la estructura es ignífuga y está aislada tanto en su interior como en su exterior con corcho aislante.

Estructura de casas modulares

Cubierta y cerramiento exterior

Tanto la cubierta como las fachadas de nuestras unidades modulares están construidas con paneles sándwich tipo SATE, adaptando el aislamiento según los requerimientos técnicos necesarios.Nuestra cubierta cuenta con tres capas de impermeabilización para garantizar la estanquidad de las viviendas. Además, la fachada presenta un acabado monocapa blanco, duradero e impermeable.

Cubierta y cerramiento exterior

Carpintería exterior y protección solar

Los grandes ventanales panorámicos son una seña de identidad en las casas modulares de Sistemarq.Trabajamos con los mejores industriales, garantizando el cumplimiento técnico y priorizando la seguridad.Podremos fabricar nuestras casas modulares con carpinterías minimalistas para lograr un acabado de alta gama o con carpinterías vistas para ajustar al máximo el presupuesto de tu hogar, cumpliendo los más altos estándares de calidad, confort, rotura de puente térmico y aislamiento.

Carpintería exterior y protección solar

Distribución y acabados interiores

Distribución de amplios espacios al exterior, líneas rectas sin interrupciones y acogedoras instancias. Las paredes están construidas con paneles minerales de última tecnología, sobre perfilería metálica y con aislamiento en el interior. Acabados homogéneos y duraderos.En cuanto al falso techo, contamos con textil tensado de última tecnología, permitiendo techos sin fisuras y registrables para mantenimientos futuros.No usamos rodapié, que es sustituido por un fino oscuro de 10mm y el pavimiento puede ser vinílico, imitación madera o cerámico.

Distribución y acabados interiores

Memoria de nuestras cocinas

Nuestras cocinas están diseñadas para maximizar la capacidad de almacenaje y la funcionalidad del espacio más vital de la vivienda.

¿Cómo se fabrican las cocinas modulares?

Fabricadas e instaladas a medida por industriales locales con cuerpos de armarios laminados blancos, puertas según petición y encimera Solid Surface.

Memoria de nuestras cocinas

Baños

Los baños de las casas modulares Sistemarq se distinguen por su diseño minimalista.

Acabados de los baños Sistemarq

Nuestros baños están equipados con platos de ducha, mampara fija, inodiro y mueble de lavabo suspendidos y espejos de gran formato con iluminación indirecta, reflejando elegancia y funcionalidad.

Baños

Instalaciones

Fontanería y saneamiento

La instalación de fontanería incluye tomas de agua para cada aparato sanitario en baños y concinas. La vivienda dispondrá de una llave de corte general y las llaves de corte independientes en cada cuarto húmedo, además de poseer bajantes insonorizadas.Los productos de agua caliente se pueden realizar mediante un sistema de calentador eléctrico o aerotermia.

Fontanería y saneamiento

Electricidad y telecomunicaciones

Cada vivienda cuenta con tomas eléctricas y de telecomunicación requeridas por normativa, así como videoportero. La iluminación se instala con tecnología LED, proporcionando iluminación indirecta a cada estancia.

Electricidad y telecomunicaciones

Climatización y ventilación

Para garantizar un máximo confort, la vivienda dispondrá de un sistema de aire acondicionado mediante splits, con la unidad exterior ubicada fuera de la casa.Cada vivienda incorporará un sistema de ventilación centralizado de doble flujo, garantizando la salubridad del aire interior.

Climatización y ventilación

Personalización de casas modulares

Todas nuestras viviendas pueden ser personalizadas para adaptarse a tus preferencias.Puedes elegir entre diferentes ambientes, acabados y distribución de la cocina, solicitar el cambio de ducha por bañera y realizar otros cambios según necesidades.

Personalización de casas modulares

Ventajas casas modulares para arquitecto y constructor

Las casas modulares ofrecen ventajas clave para arquitectos y constructores: rapidez en la ejecución, flexibilidad en el diseño y alta calidad de construcción. Gracias a su fabricación en fábrica y fácil montaje, permiten reducir los tiempos de obra, minimizar los costos y garantizar resultados sostenibles y duraderos. Además, su adaptabilidad y personalización las convierten en una solución ideal para proyectos innovadores y de alto rendimiento.

Ventajas casas modulares para arquitecto y constructor

Flexibilidad
de diseño

Resolución
de costes

Transporte y
montaje sencillos

Rápida
instalación en obra

Control
de calidad

Módulos super ligeros con revestimiento Slim Solid Surface

Revestimiento
gran formato

Ligereza en
transporte y montaje

Ventajas casas modulares para el cliente

Las casas modulares ofrecen múltiples ventajas para el cliente: soluciones personalizadas que se adaptan a sus necesidades, tiempos de construcción reducidos y precios más competitivos. Con acabados de alta calidad y la posibilidad de elegir entre diferentes estilos y distribuciones, cada cliente puede obtener su hogar ideal de manera rápida, eficiente y a un costo controlado, sin sacrificar confort ni durabilidad.

Ventajas casas modulares para el cliente

Flexibilidad
de diseño

Resolución
de costes

Transporte y
montaje sencillos

Rápida
instalación en obra

Control
de calidad

Módulos super ligeros con revestimiento Slim Solid Surface

Revestimiento
gran formato

Ligereza en
transporte y montaje

+Información Casas Modulares

Gracias a su tecnología modular, estas unidades pueden ser transportadas fácilmente, ofreciendo flexibilidad de transportar el espacio a diferentes ubicaciones. Además, mediante nuestro innovador sistema de particiones industrializadas, es posible obtener espacios personalizados que se pueden fabricar en serie según los requisitos de cada proyecto.

Tu casa modular con Modularq

Modularq tiene como objetivo ofrecer una experiencia de vida excepcional, donde el lujo y la funcionalidad se fusionan en una solución habitacional de primer nivel.